232 EDGEWOOD AVENUEAUDUBON, NJ 08106
Due to the health concerns created by Coronavirus we are offering personal 1-1 online video walkthough tours where possible.




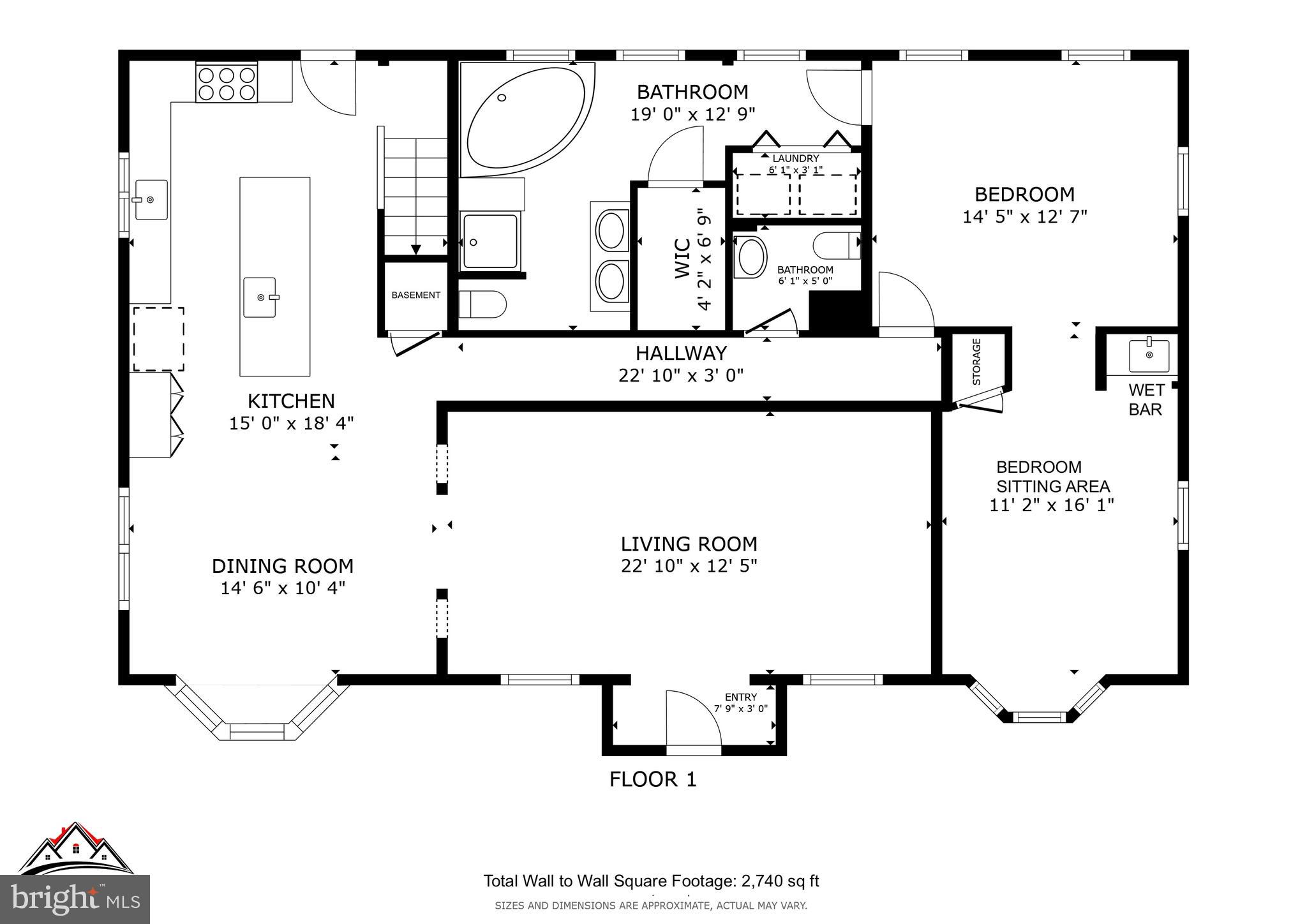
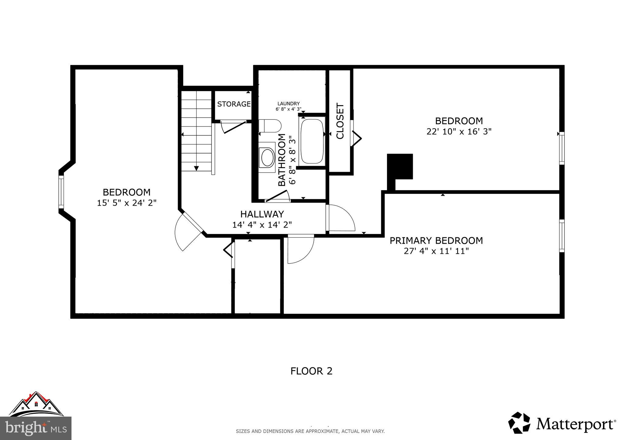
Spacious and thoughtfully updated 4-bedroom, 2.5-bath Cape offering 2,740 square feet of living space on a rare, fully fenced half-acre lot in Audubon. The main level features a stunning first-floor primary owner’s suite created through a custom conversion, complete with a private sitting area that can easily function as a home office, nursery, gym, or additional living space, along with hardwood floors, walk-in closet, dedicated laundry, and a full en-suite bath with soaking tub, custom shower, and double-sink vanity—making it ideal for in-law or multigenerational living with convenient first-floor access to the kitchen and main living areas. The remainder of the first floor includes a bright living room, dining room with a charming built-in window seat/sitting nook, an updated eat-in kitchen with quartz countertops, recessed lighting, built-in microwave, luxury vinyl plank flooring, and a 36” dual-fuel range, plus a convenient half bath. The second floor offers three generously sized bedrooms, a full bath, a second laundry area, and ample closet space. A full, unfinished walk-out basement with ceiling height suitable for finishing provides excellent future expansion potential and houses mechanicals. Outside, enjoy a large Trex deck (2020) ideal for entertaining, a fully fenced yard, and a newer shed (2025), with the property backing directly to Audubon High School athletic fields, offering open views, privacy, and easy access to the track, tennis courts, and fields—plus front-row views of Fourth of July fireworks. Major updates include vinyl siding (2020), vinyl fencing (2020), roof (2016), first-floor furnace (2021), second-floor HVAC system (2024 with transferable 10-year warranty), and AC condenser (2017). Driveway and street parking available. Conveniently located just minutes to schools, shopping, major highways, and approximately 10 minutes to Philadelphia. A rare combination of space, flexibility, yard size, and location in Audubon.
| 2 weeks ago | Status changed to Pending | |
| 2 weeks ago | Listing updated with changes from the MLS® | |
| 3 months ago | Listing first seen on site |
The real estate listing information is provided by Bright MLS is for the consumer's personal, non-commercial use and may not be used for any purpose other than to identify prospective properties consumer may be interested in purchasing. Any information relating to real estate for sale or lease referenced on this web site comes from the Internet Data Exchange (IDX) program of the Bright MLS. This web site references real estate listing(s) held by a brokerage firm other than the broker and/or agent who owns this web site. The accuracy of all information is deemed reliable but not guaranteed and should be personally verified through personal inspection by and/or with the appropriate professionals. Properties in listings may have been sold or may no longer be available. The data contained herein is copyrighted by Bright MLS and is protected by all applicable copyright laws. Any unauthorized collection or dissemination of this information is in violation of copyright laws and is strictly prohibited. Copyright © 2020 Bright MLS. All rights reserved.


Did you know? You can invite friends and family to your search. They can join your search, rate and discuss listings with you.