0 SUNNYHILL AVE/MARY DUFFY DRIVEWILLIAMSTOWN, NJ 08094
Due to the health concerns created by Coronavirus we are offering personal 1-1 online video walkthough tours where possible.


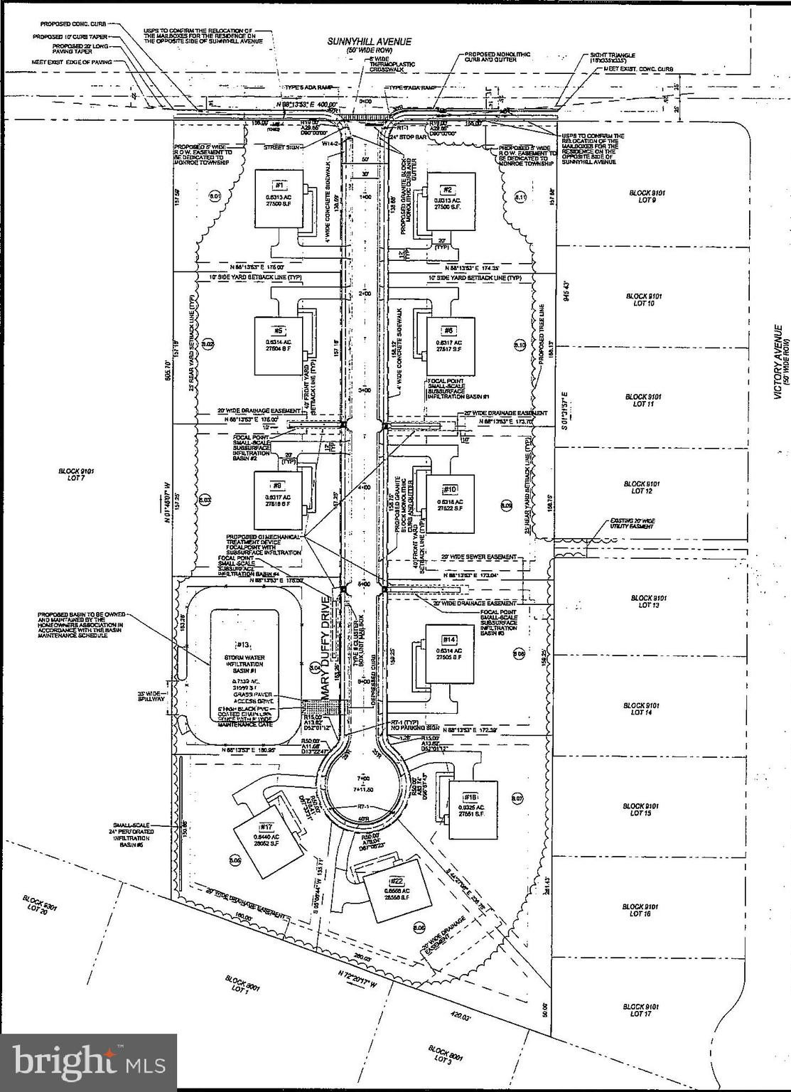
RESIDENTIAL DEVELOPMENT OPPORTUNITY: Rare, fully approved 10-lot residential subdivision in desirable Monroe Township. Skip the entitlement risk and timeline—approvals are in place so you can focus on engineering, site work, and vertical construction planning. Highlights: 10 buildable lots (final subdivision approvals in hand), Monroe Township, New Jersey – strong demand & growth corridor, All approvals complete for subdivision (docs available upon request), Phase 1 environmental available that was done on 6/24/2025. Prime location with convenient access to major roadways, schools, and amenities. Ideal for: Builders, small-to-mid developers, and investor groups seeking an entitled project to accelerate pipeline. Due Diligence/Access: Approval and plans available for review.
| a week ago | Price changed to $799,890 | |
| a week ago | Listing updated with changes from the MLS® | |
| 4 months ago | Listing first seen on site |
The real estate listing information is provided by Bright MLS is for the consumer's personal, non-commercial use and may not be used for any purpose other than to identify prospective properties consumer may be interested in purchasing. Any information relating to real estate for sale or lease referenced on this web site comes from the Internet Data Exchange (IDX) program of the Bright MLS. This web site references real estate listing(s) held by a brokerage firm other than the broker and/or agent who owns this web site. The accuracy of all information is deemed reliable but not guaranteed and should be personally verified through personal inspection by and/or with the appropriate professionals. Properties in listings may have been sold or may no longer be available. The data contained herein is copyrighted by Bright MLS and is protected by all applicable copyright laws. Any unauthorized collection or dissemination of this information is in violation of copyright laws and is strictly prohibited. Copyright © 2020 Bright MLS. All rights reserved.


Did you know? You can invite friends and family to your search. They can join your search, rate and discuss listings with you.